Skip to the navigation
.
Skip to the content
.
Fakultät II
Architektur
Schwarzes Brett
Veranstaltungen
Studienberatung und -koordination
Studieninteressierte / Studienbewerber
Studierende
Forschung
Fachgebiete und Labore
Personen
Alumni
Förderverein
Kontakt
Instagram
Bewerbungsphase Studienbeginn Wintersemester 2025/2026
Mail
unisono
Formulare
Suche
Wir verwenden Google für unsere Suche. Mit Klick auf diesen Button aktivieren Sie das Suchfenster und akzeptieren die Nutzungsbedingungen.
Hinweise zum Einsatz der Google Suche
Erweiterte Suche
Personensuche
zur unisono Personensuche
Veranstaltungssuche
zur unisono Veranstaltungssuche
Katalog plus
/
architektur
/
galerie
/
archikubus
/
unterlagen.html
Experimentalbau Archikubus
Konzept
Entwurfsunterlagen
Sponsoren
Entwurfsunterlagen
Lageplan
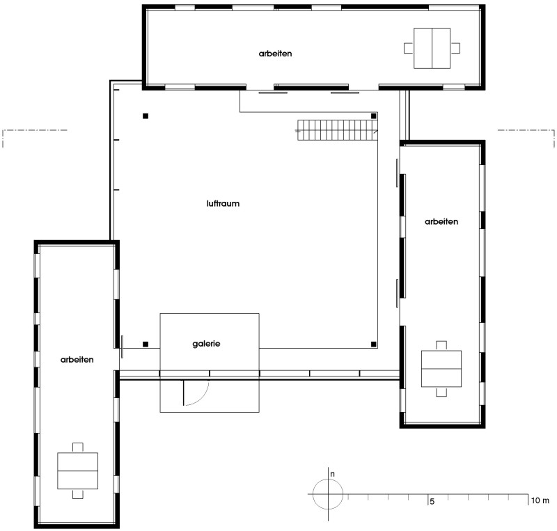
Grundrisse
Perspektiven
Suche
Wir verwenden Google für unsere Suche. Mit Klick auf diesen Button aktivieren Sie das Suchfenster und akzeptieren die Nutzungsbedingungen.
Hinweise zum Einsatz der Google Suche
© Universität Siegen
|
Datenschutzerklärung
|
Erklärung zur Barrierefreiheit
|
Notruf Durchwahl 2111
|
E-Mail an die Webredaktion